当前位置 > 亚娱(中国)频道 > 承包租赁亚娱(中国) > 房产
亚娱(中国)基本信息
编号 FC00015054
名称 福建省电子信息集团科学工业园产业孵化楼11层南北区分别招租
挂牌价 详见亚娱体育app官网
保证金 详见亚娱体育app官网
挂牌开始日期 2020-09-04
挂牌结束日期 2020-09-24
是否延牌
联系人 许先生、陈女士、赖先生
联系电话 0591-87809323、87276322、87838107
地址 福州市湖东路152号中山大厦A座22层
发布机构 亚娱体育app官网

一、亚娱(中国)简介

1、租赁标的挂牌价及保证金:

标的

序号

租赁标的

建筑

面积(㎡)

首年月

租金挂牌价(元,含税)

竞价保证金

(万元)

标的1

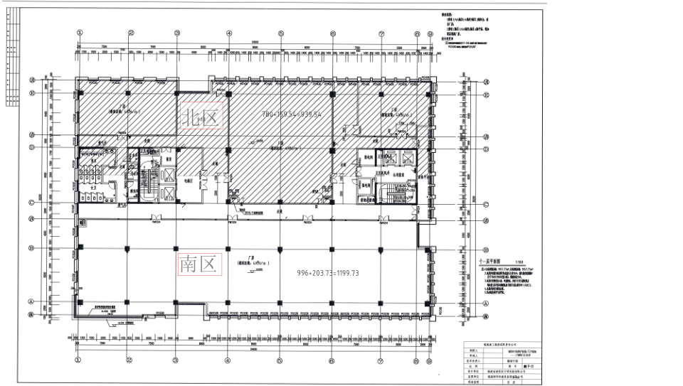
FEI科学工业园产业孵化楼11层北区

约939.92(以实际测绘的面积为准)

28186.2

5

标的2

FEI科学工业园产业孵化楼11层南区

约1199.73(以实际测绘的面积为准)

35991.9

6.5

注1:以上标的分别招租,同一竞租人在符合竞租条件的前提下可报名竞租单个标的或多个标的,报名竞租多个标的的,需针对每一个标的交纳足额竞价保证金。

注2:FEI科工园产业孵化楼11层南北区位划分详见附件:产业孵化楼11层平面图。

2租赁标的基本情况

租赁标的位于福建省福州市闽侯县南屿镇尧溪路3号FEI科学工业园产业孵化楼,建筑总面积为21224.6平方米(具体建筑面积以竣工验收后办理的产权证为准)。房屋不动产权证暂未取得,土地使用权证号为侯国用(2015)第209474号,土地使用权类型为出让,土地使用终止日期为2065年4月6日,土地用途工业用地,房屋用途为厂房 。

若在看样期至标的移交日期间现场发生变化,最终解释权归出租方所有,组织方不对现场状况进行保证及现场状况变化作出解释,亦不承担任何法律责任。

3、(风险)提示

租赁物为福建省菲格园区开发管理有限公司名下资产,暂未取得产权证。承租方竞得租赁标的的承租权后,不得以租赁标的未取得产权证为由,拒签成交材料、房屋租赁合同等文件,也不得以此为由拒绝履行《房屋租赁合同》。

租赁标的以现状出租,竞租人自行查勘现场,并自行承担查勘过程的一切费用,全部承担查勘中任何因未全面了解或误解现场实际状况而导致的一切后果,若竞租人缴纳保证金并参与竞价,即视为该竞租人对标的的现况及存在的瑕疵完全认可且无异议。

4、租赁用途:该房屋的使用功能为厂房,竞买人须依据该房屋性质从事符合福州高新区管委会制定的行业要求。

5、首年月租金挂牌价:详见一、亚娱(中国)简介1、租赁标的挂牌价及其保证金。挂牌价为租赁标的首年月租金底价。租赁标的的租金不含其他任何费用,即承租方要自行负责物业管理费、水、电、卫生、公摊费等日常管理、经营管理的一切相关费用。

6、租赁期限及租金递增方式:租赁期限5年,具体承租起止日期和场地交付日期由出租方与承租方协商约定,租赁标的的交付日期以出租方与承租方双方确定的《交付时间表》为准,具体承租起止日以《房屋租赁合同》约定为准。首个租赁年度(12个月为一个租赁年度)月租金(含税)为公开竞价确定的成交价,从第3个租赁年度起(含第3个租赁年度)至租期结束,每年度月租金在上一个租赁年度月租金基础上逐年递增5%。

7、免租期:亚娱(中国)免租期为6个月(自出租方按租赁合同约定将租赁场所移交承租方使用之日起算)。

8、租金支付方式:租金按月结算,先付后用,承租方的首月租金于房屋租赁合同生效后,承租方收到出租方开具发票之日起3个工作日内向出租方缴纳首月月租金。此后每月月租金承租方应在收到出租方开具下月租金发票后5个工作日内支付相应租金。

9、履约保证金及其支付方式:承租方应于《房屋租赁合同》签订当日向出租方支付3个月首年月租金作为履约保证金(不计利息)。履约保证金不能冲抵租金及各项费用。合同期内,若承租方无任何违约行为,并经出租方验收合格后7个工作日内将履约保证金无息退还承租方。该租赁标的期满,承租方应如期交还。

10、合同签署:出租方与承租方应在成交结果公示结束次日起3个工作日内签订《房屋租赁合同》。

、竞租人应当具备的资格条件

1、合法成立并有效存续的企业法人、其他经济组织。

2、未被列入全国法院失信被执行人名单。

3、符合国家法律、行政法规规定的其他条件。

4、本亚娱(中国)不接受联合体竞租。

、竞租人(承租方)应接受的主要租赁条件

1、承租方与竞租人必须一致,在租赁期限内,未经出租方书面同意,承租方不得将租赁标的全部或部分转租、转让、转借给他人使用。

2、承租方依法诚信经营,自行负责办理所需政府批准的有关手续和相关事宜(包括工商、税务登记、卫生、安全、环保、消防审批及二次装修验收等)。

3、租赁过程产生的各种税费由出租方、承租方按国家相关规定各自承担,未有法律法规规定的,由承租方承担。租赁期间产生的物业管理费、水费、电费及公摊费用等各项费用由承租方承担。

4、承租方装修房屋,应事先向出租方提出书面申请并取得出租方书面同意。承租方装修应符合消防规范,不得擅自改变房屋主体结构。如因承租方设计及装修原因导致消防不合格,责任由承租方自行承担,承租方不得借此理由拒付租金及其他费用。承租方装修完成后3日内应当通知出租方审核,出租方审核通过后方可投入使用。若出租方在审核过程中认为装修存在任何问题,承租方应当无条件整改直至出租方满意。房屋租赁合同终止后,承租方应保持装修原样交付给出租方,依附于房屋的固定装修(如隔墙、地砖或地板、吊顶、门、窗、壁橱、防盗网等)不计残值无偿归出租方所有,承租方不得损坏和拆除。

5、承租方须无条件全部签署、接受上述主要租赁条件和本亚娱(中国)《房屋租赁合同》。

四、竞价方式:网络竞价

五、亚娱体育app官网期限:2020年9月4日至2020年9月24日(若在此期间未征集到承租方,则亚娱体育app官网期限以每5个工作日为一个周期顺延,直至2020年12月31日征集到承租方或另行亚娱体育app官网为止)。

六、报名截止时间:2020年9月24日17时。有意参加竞价的竞租人请在亚娱体育app官网期内联系我中心亚娱(中国)经办人员获取《竞价须知》。《房屋租赁合同》等详见本亚娱(中国)《竞价须知》。 

七、联系人:陈女士、许先生、赖先生;

电话: 0591-87276322、87809323、87838107;

地址:福州市湖东路152号中山大厦A座22层。

监督电话:0591-87810363

 

附件:产业孵化楼11层平面图: